4 4

4 bed Town House - For Sale
Chancery Lane, Wells-next-the-Sea
Offers In Excess Of £650,000

  • Conversion Opportunity
  • Proposed 4 En-Suite Bedrooms
  • PF/21/1533
  • 2,261 sq ft
  • Town Centre Location
  • Grade II Listed
  • Offered For Sale With No Onward Chain
  • Potential For a Spacious Kitchen/Diner
  • Bright And Airy Sitting Room With Views Over The Buttlands
SUMMARY:
An exciting opportunity to acquire a conversion project of a landmark building, in the heart of Wells, overlooking The Buttlands. The building extends in all to about 2,261 sq ft (210 sq m), with proposed accommodation of; 4 en-suite bedrooms & a utility room to the ground floor and kitchen, 2 reception rooms & a cloakroom at first floor level, however the property lends itself to subdivision to 2 units (STPP). Building Regulation Approval has been issued for conversion from commercial to residential use, together with planning consent for external alterations. There is a small courtyard to the east and a roof garden is proposed, west facing, overlooking The Buttlands.

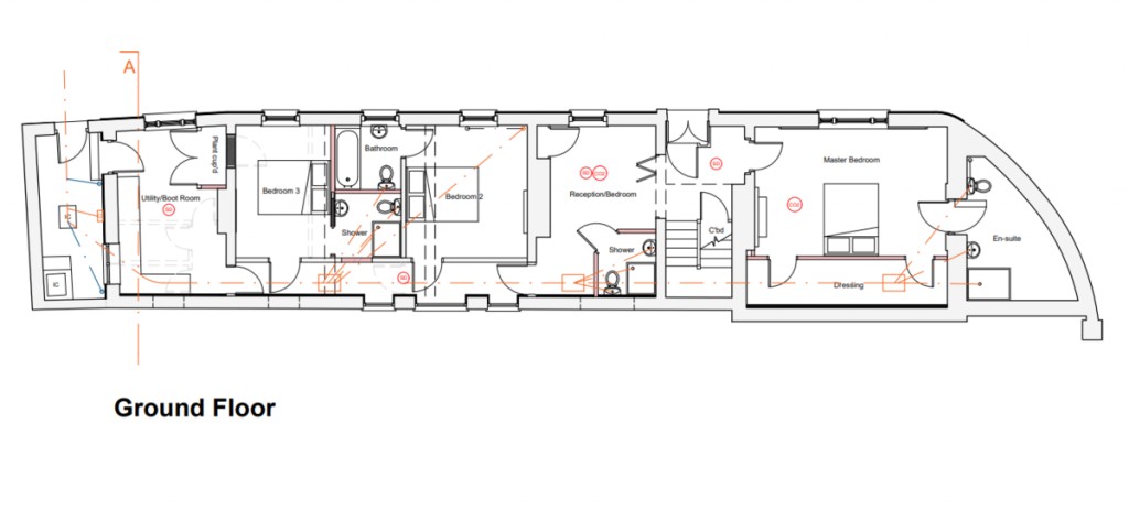
GROUND FLOOR:
Double entrance doors with fanlight over to;

LOBBY:
Part glazed door with side pane to;

MASTER BEDROOM: 17' 4" x 11' 8" (5.28m x 3.56m)
With
Dressing Area: 18'3" x 4'4" (5.56m x 1.32m)
Shuttered sash window to south. Original wrought iron gate and "thief-resisting" door with ornamental brick surround to;

EN-SUITE SHOWER ROOM: 13' x 10' max - 1'7" min (3.96m x 3.05m max - 0.48m min)
Terrazzo tiled floor and exposed brick walls.

RECEPTION/BEDROOM: 17' 5" x 15' 7" (5.31m x 4.75m) overall
Stairs to first floor with built-in cupboard under. Sash window to south, door to rear corridor and door to;

SHOWER ROOM: 5' 8" x 5' 7" (1.73m x 1.7m) max

REAR CORRIDOR:

BEDROOM: 12' x 10' 9" (3.66m x 3.28m)
Sash window to south and door to;

EN-SUITE BATHROOM: 6' 2" x 5' 10" (1.88m x 1.78m)
Sash window to south.

BEDROOM: 12' 1" x 8' 8" (3.68m x 2.64m)
Sash window to south and door to;

EN-SUITE: 5' 11" x 5' 4" (1.8m x 1.63m)

UTILITY/BOOT ROOM: 15' 3" x 9' 9" (4.65m x 2.97m) max
Sash window with side panes to south and door to courtyard.

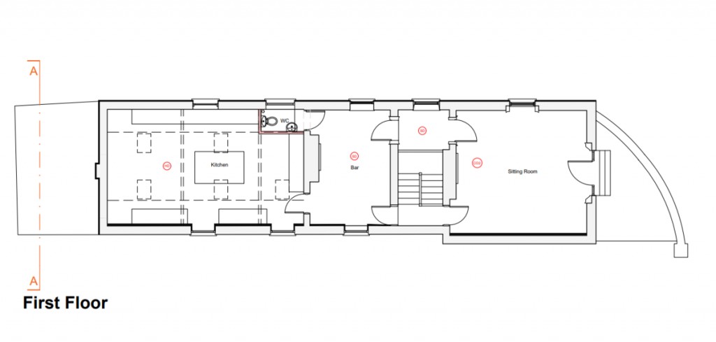
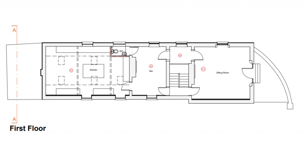
FIRST FLOOR:

LANDING:
Doors to;

SITTING ROOM: 18' 4" x 16' 6" (5.59m x 5.03m) max
Former fireplace with pine surround/mantelpiece, moulded plaster ceiling patera, sash window with side panes to west overlooking The Buttlands, sash window to south and doors to roof garden and;

GALLERIED LANDING:
Sash window and door to;

BAR: 15' 5" x 10' 8" (4.7m x 3.25m) max
Brick fireplace with timber surround/mantelpiece, sash window to south and doors to;

CLOAKROOM: 5' 3" x 3' 3" (1.6m x 0.99m)

KITCHEN: 26' 4" x 15' 7" (8.03m x 4.75m) max
Exposed brick walls & roof timbers and concrete floor. Window to south and 3 rooflights.

OUTSIDE: At the eastern end of the building a door from the utility/boot room accesses a walled courtyard (14'8" x 6'1"), with a door giving pedestrian access to Chancery Lane.

SERVICES:
All mains services are connected to the property.

DISTRICT COUNCIL: North Norfolk.
The premises were previously assessed for Uniform Business Rates, at a Rateable Value of £9,500.

PLEASE NOTE:
Approval for conversion of the premises from commercial use to residential has been issued - PU/21/1279.

Planning application for external alterations has been granted - PF/21/1533.

VIEWING:
By appointment through the Sole Agents,
Spalding & Co.,
Office Opening Hours:
Monday - Friday: 9:00 a.m. - 5:00 p.m.
Saturday: 9:30 a.m. - 12:30 p.m.
Floorplans For Chancery Lane, Wells-next-the-Sea Floorplans For Chancery Lane, Wells-next-the-Sea
EPC For Chancery Lane, Wells-next-the-Sea
Arrange a viewing for Chancery Lane, Wells-next-the-Sea

For further details on this property please call us on:
01328 862396

Arrange Viewing